Museum of Vergina Competition
Projects
Our intention was to organize the whole in a monolithic structure would enfold the inner space that accommodate the exhibits whilst the natural lighting would invade thru means like skylights and slot openings creating an dramatic atmosphere to accent their preciousness.
The building of the Archaeological Museum was organized into zones of different usages and movements. The activities of the program are arranged at the West-East direction, which serves a probable future expansion.
An elongated course leads up to a sheltered open space that distributes the movements either to the entrance hall and the store on the left, or to the amphitheatre, the educational hall and the cafe southwards offering simultaneously the extensive view of the archeological excavations.
This is a collaboration work with Attelier A66, C. Plaini, Q. Bertrad, N. Dritsa, M. Portalios.
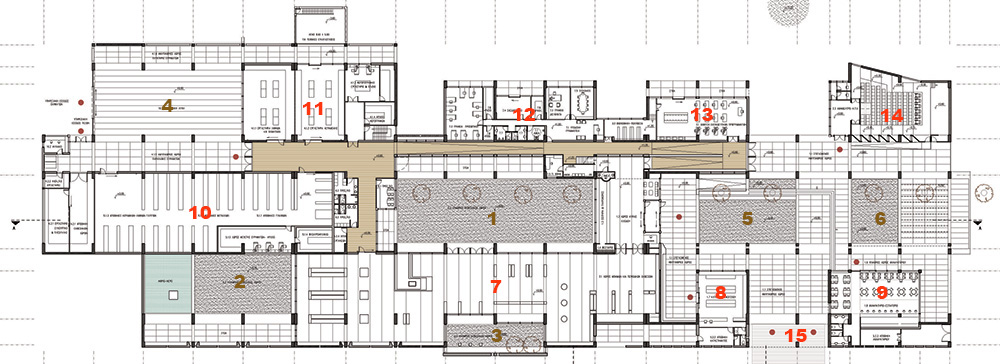
Zones:
1-3 :Outdoors exhibitional patios
4: Services patio
5,6: Recreational patios
7: Exhibition
8: Shop
9: Cafe
10: Stores
11:Workshops
12: Offices
13: Education
14: Amphitheatre
15: Entrance
Slots and Rooflights
Rooflights are located above the stores,
workshops and the cafeteria.
Slot openings for sunlight are located
in exhibition spaces
The main exhibition areas have double height.
Obscure areas & Patios
The interior and exterior spaces of the museum are entwined. Obscure exterior areas extended wide slabs covering create quality light for the exhibits, and cool functional areas for a Mediterranean climate.
Landscape concept
For the site area we decided to propose a botanical garden for the cultivation of a wide variety of plants destined for both scientific and recreational purposes that are arranged into categories. This garden appears as a canvas with geometrical patterns when seen from above.
Site’s landscape design






