School of Fine Arts
Projects
The project of Atelier A66 was elected as best in a National competition. After many years of stagnation and spatial ‘improvisations’, it was given the chance in 2005 to carry out the scheme for the rehabilitation the existing and and design the new sections to the site.
New stagnation made possible only the new Library to be build until 2015.
The building of the teaching Halls, amphitheaters and the administrations’ offices with their facilities will follow next.
This is a collaboration work for Attelier A66, 2003.
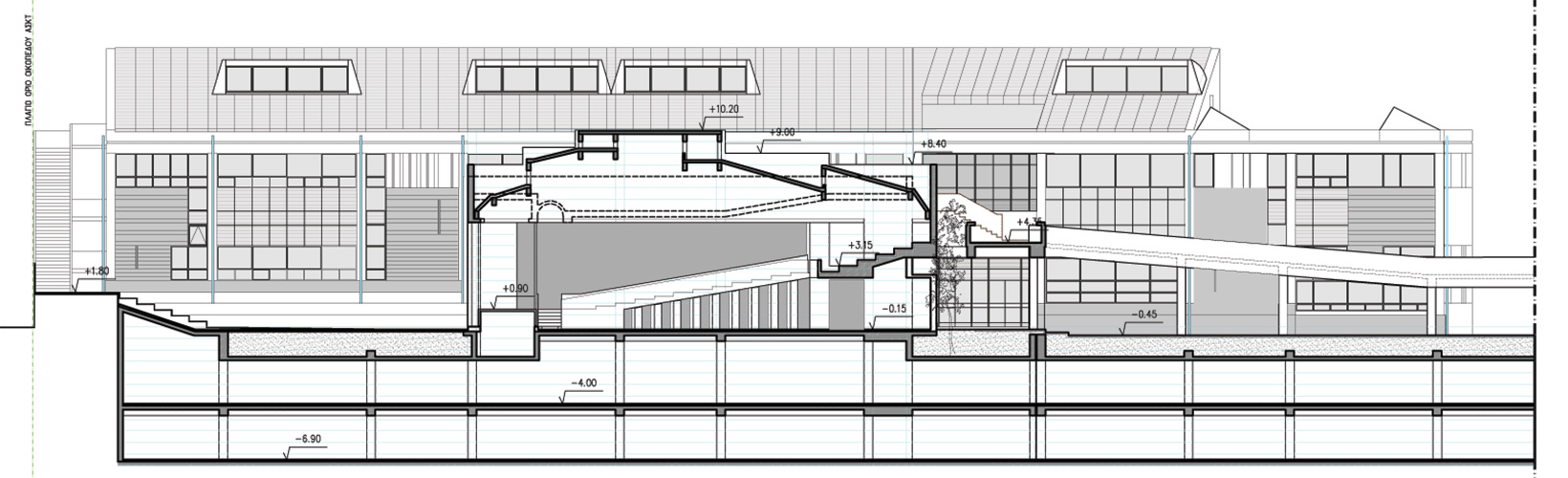
The General Plan:
- A two-storey garage lies underneath the front main square of the complex, at the place where the old storehouse exists.
- The Library was the first to be designed and built.
- The building of the teaching Halls, amphitheaters and the administrations’ offices with related facilities will follow next.
- The teaching Halls, the multi-purpose Amphitheater and the Refectory are accommodated at the ground floor,
- A smaller Amphitheater, two Seminar rooms, Office and some student Facilities are found at the next floor,
- More Offices and the Rector’s section is found at the 3rd floor .
- The listed neoclassical building at the front space of the site is planned to be restored to accommodate the Reception, the Lounge and a Bar for the employees of the school.
The Library Elevation is a Mixed Construction







